地域の新たな中核となる公民館をつくりたい【千葉県鴨川市】
カテゴリー:まちづくり
寄付金額 0円
目標金額:10,000,000円
- 達成率
- 0%
- 支援人数
- 0人
- 終了まで
-
90日
/ 90日
千葉県鴨川市(ちばけん かもがわし)
寄付募集期間:2025年10月8日~2026年1月5日(90日間)
千葉県鴨川市

鴨川市では、平成27年3月に廃校となった江見小学校の跡地を活用して、新しい公民館の建築工事を進めています。
新しい施設は、地域の公民館としての多目的室や講堂などの機能に加え、市の出張所機能を兼ね備えています。
市民活動や市民の健康づくり・スポーツ活動への活用など地域づくりの活動の拠点として活用して参ります。
建築に向けて
平成27年4月に江見小学校が閉校となって以来、その跡地について、民間事業者等による利活用を検討するとともに、地域の方々から早期の活用とともに、具体的に公民館や出張所の設置、避難所の確保や消防団詰所の設置などの要望をいただきました。
このような中で、令和5年2月に策定した「鴨川市公民館等再編方針」を踏まえ、出張所機能等を併設した江見地区(江見、太海、曽呂)の新たな中核となる公民館施設を整備することといたしました。
これにより、「(仮称)江見公民館建築工事」並びにそれに伴い必要となる「エネルギー棟建築工事」及び「外構工事」を実施して参ります。
ご賛同いただける皆様からの温かいご支援をお待ちしております。
新しい施設について
生涯学習活動及び地域コミュニティの拠点として、どなたでも気軽に立ち寄れる施設とすることをコンセプトに、地域住民の皆様や定期利用団体の皆様などからご意見やご要望を伺いながら計画しました。
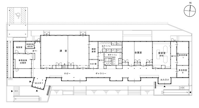
【施設概要】
・事務室兼出張所
・相談室(福祉総合相談センター、国保病院訪問看護待機場所としても活用します。)
・トイレ(みんなのトイレ含む。)
・救護室兼授乳室
・講堂(約100人規模の講演会などを開催可能なスペース。2分割も可能で、人数や用途により様々な使い方ができます。)
・会議室(2分割可能)
・実習室(調理台3台)
・多目的室(地区社会福祉協議会などの皆さんが活動する場所です。)
・ギャラリー(作品を展示することも可能なスペースです。)
・施設内すべてがバリアフリー。車いすも出入り可能となっています。

寄附の使途
頂いたご寄附は、「(仮称)江見公民館建築工事」及び関連経費に活用させていただきます。
【建築スケジュール】
・令和7年3月着工
・令和7年11月竣工(予定)
・令和8年度供用開始(予定)
※目標金額に達しなかった場合も、事業は実施し、上記の経費に活用させていただきます。
ふるさと納税で
このプロジェクトを応援しよう!
ふるさと納税とは、ふるさとや応援したい自治体に寄付できる制度です。
控除上限額内の2,000円を超える部分について、所得税や住民税の還付・控除が受けられます。
控除上限額かんたんシミュレーション
現在進捗情報はありません。
千葉県鴨川市
温暖な気候と豊かな自然に恵まれた都心から90分のリゾート鴨川市に是非一度お越しください!
鴨川市は、千葉県の房総半島南東部、太平洋側に面し、北部から東部に連なる清澄山系と、市の中央部を横断する嶺岡山系との間に、米どころとして知られる長狭平野が開け、その平野が太平洋に面した地域に市街地が形成温暖な気候と豊かな自然環境、新鮮で豊富な食材に代表される貴重な自然資源はもとより、全国レベルの集客力を持つ観光・宿泊施設、充実した医療・福祉・スポーツ環境や特色ある保育・教育環境など、まちづくりの基盤となる地域資源を多数有しています。
コメント投稿をありがとうございます!
あなたのその想いが
プロジェクトを動かしています。
投稿は順次、進捗情報ページへ反映されます。
反映まで数日かかることがあります。